Ideaal gelegen en ruime drive-in woning met een prettig uitzicht. Een multifunctionele kamer op de begane grond is perfect te gebruiken als werk-, studie- of praktijkruimte, of als vierde slaapkamer. De woning beschikt over parkeren op eigen terrein onder een carport, een inpandige garage, een achtertuin en een groot zonneterras...
Doorwerth Patrijzenlaan 23
€425.000,- Kosten koper
Kenmerken
| Soort object | Woonhuis |
|---|---|
| Bouwjaar | 1974 |
| Woonoppervlakte | 139 m2 |
| Perceeloppervlakte | 155 m2 |
In de buurt
Locatie
Kenmerken
| Prijs | € 425000 ,- Kosten koper |
|---|---|
| Soort object | Woonhuis |
| Bouwjaar | 1974 |
| Woonoppervlakte | 139 m2 |
| Perceeloppervlakte | 155 m2 |
Bouwvorm
| Soort object | Woonhuis |
|---|---|
| Soort woning | Eengezinswoning |
| Type woning | Tussenwoning |
| Bouwjaar | 1974 |
| Bouwvorm | Bestaande bouw |
Indeling
| Woonoppervlakte | 139 m2 |
|---|---|
| Perceeloppervlakte | 155 m2 |
| Inhoud | 507 m3 |
| Aantal kamers | 5 |
| Aantal slaapkamers | 4 |
Energie
| Verwarming | Cv ketel |
|---|---|
| C.V.-Ketel | Cv ketel |
| Warmwater | Cv ketel |
| Isolatie | Gedeeltelijk dubbel glas, hr glas |
| Combiketel | Ja |
| Brandstof | Gas |
| Eigendom | Eigendom |
Buitenruimte
| Tuin | Achtertuin, voortuin |
|---|---|
| Hoofdtuin | Achtertuin |
| Oppervlakte hoofdtuin | 60 m2 ( bij ) |
| Ligging hoofdtuin | Noord |
Parkeergelegenheid
| Garage | Inpandig, carport |
|---|---|
| Voorzieningen | Elektra |
| Parkeerfaciliteiten | Openbaar parkeren, op eigen terrein |
Overig
| Permanente bewoning | Ja |
|---|---|
| Onderhoud binnen | Redelijk tot goed |
| Onderhoud buiten | Redelijk tot goed |
| Huidig gebruik | Woonruimte |
| Huidige bestemming | Woonruimte |
Omschrijving
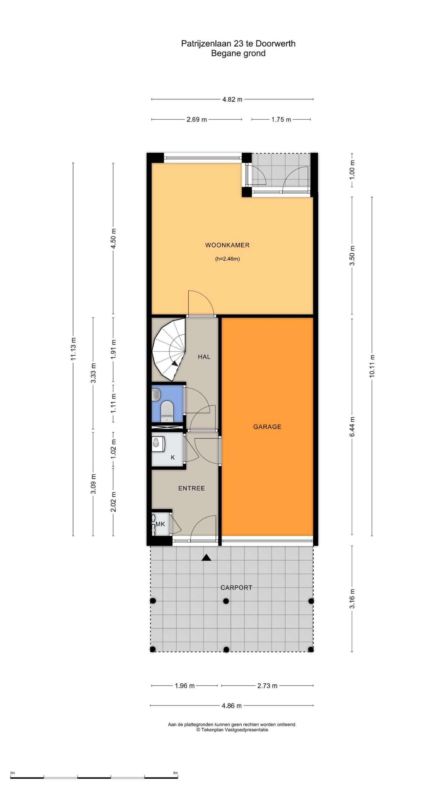
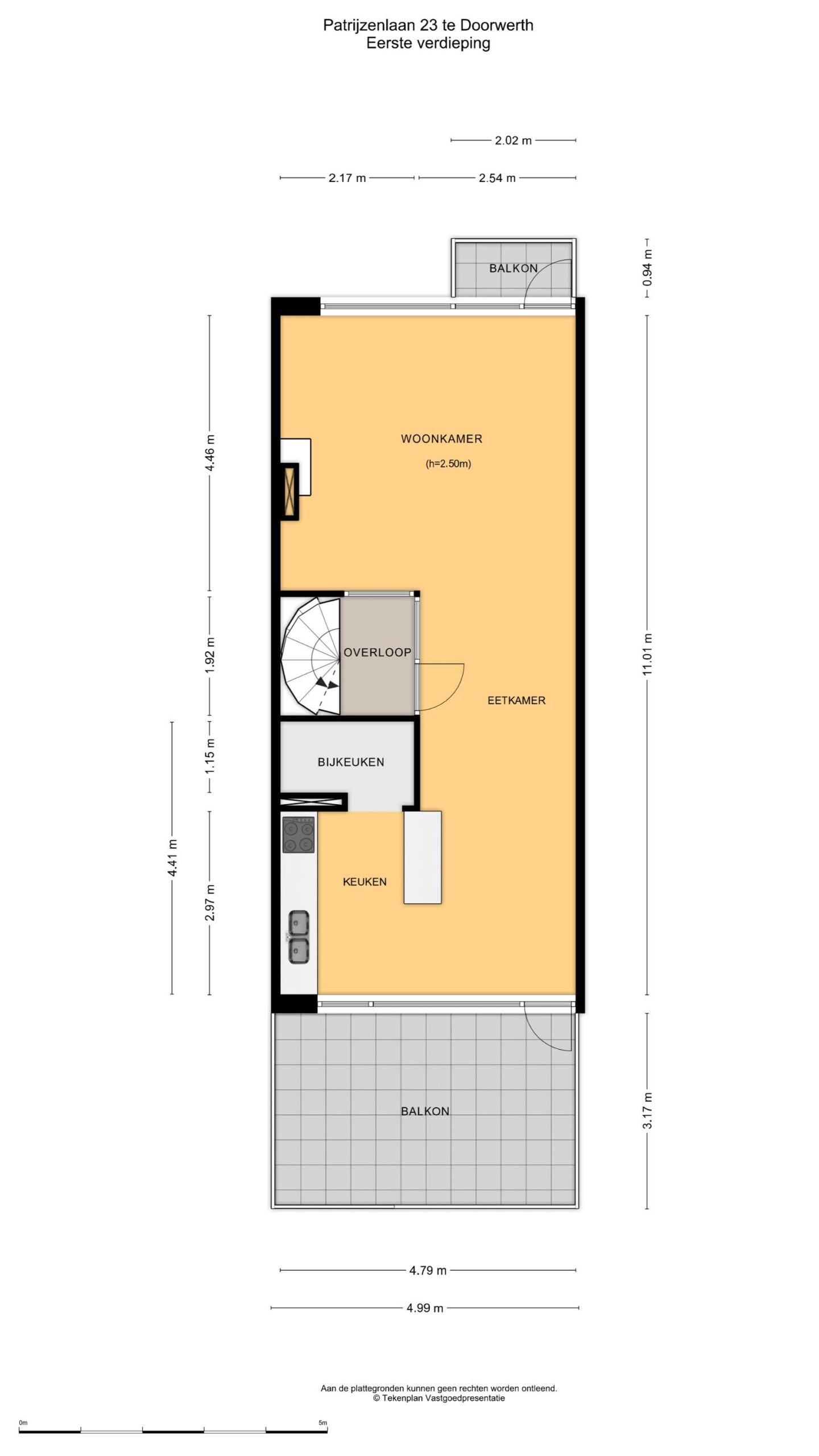
Ideaal gelegen en ruime drive-in woning met een prettig uitzicht. Een multifunctionele kamer op de begane grond is perfect te gebruiken als werk-, studie- of praktijkruimte, of als vierde slaapkamer. De woning beschikt over parkeren op eigen terrein onder een carport, een inpandige garage, een achtertuin en een groot zonneterras op het zuiden, grenzend aan de woonkeuken.
De woning is verdeeld over drie verdiepingen, waarvan twee verdiepingen zijn voorzien van kunststof kozijnen met HR dubbel glas. De bruto vloeroppervlakte, inclusief inpandige garage, bedraagt circa 158 m², de netto woonoppervlakte exclusief garage circa 140 m². De garage kan desgewenst worden omgebouwd tot een extra kamer.
Locatie
Gelegen in het prachtige, bosrijke Doorwerth, aan de zuidkant van de Veluwezoom – één van de mooiste en meest waardevolle natuurgebieden van Nederland. Hier vindt u uitgestrekte bossen, glooiende heidevelden en de uiterwaarden van de Rijn, ideaal voor eindeloze wandel- en fietstochten. Het huis ligt op korte afstand van winkelcentrum “De Weerd” en diverse andere voorzieningen zoals busverbindingen, scholen, uitvalswegen en sportfaciliteiten. Een perfecte combinatie van natuurschoon en uitstekende bereikbaarheid.
Beschrijving van de woning
Via de entree komt u in de hal met garderobe, meterkast en een praktische inbouwkast met CV-opstelling. Op de begane grond bevindt zich een multifunctionele kamer met tuindeur naar de achtertuin, perfect te gebruiken voor werk of praktijk aan huis, en de inpandige, verwarmde garage met garagedeur. Daarnaast is er een toilet met fontein aanwezig.
Op de eerste verdieping treft u een lichte en ruime woonkamer met open haard en balkon, de woonkeuken met keukenblok en inbouwapparatuur, een praktische bijkeuken en toegang tot een groot, zonnig terras op het zuiden.
De tweede verdieping beschikt over een overloop met vaste kast, drie ruime slaapkamers, een apart toilet en een ruime badkamer voorzien van ligbad, douche en dubbele wastafels.
Bijzonderheden
– Traplift aanwezig
– Elektrische zonwering aanwezig
– Deze bezienswaardige drive-in woning biedt uitstekende mogelijkheden voor werken of praktijk aan huis.
– In de koopovereenkomst worden aanvullende clausules opgenomen en de woning wordt geleverd met de aanwezige inboedel in overleg.
Snelle aanvaarding is bespreekbaar.
Wijk statistieken
Aantal inwoners Renkum: 31,391
In de buurt
Selecteer de filters om te zien wat er in de buurt te vinden is.
Documenten
Selecteer de gewenste documenten om ze te downloaden