Doorwerth Bentincklaan 32

€389.500,- Kosten koper

Korte omschrijving

Goed onderhouden en fraai gemoderniseerd helft van dubbel woonhuis met 3 slaapkamers en een zonnige tuin. Dit in 1954 als semi-bungalow gebouwde helft van dubbel woonhuis is in de afgelopen jaren grondig gemoderniseerd, uitgebreid met grote dakkapellen en is voorzien van alle gemakken, waaronder een praktische bijkeuken. De woning beschikt...

Lees meer over deze woning

Kenmerken

Soort object Woonhuis
Woonoppervlakte 101 m2
Perceeloppervlakte 184 m2
Bekijk meer kenmerken

In de buurt

Bekijk meer op de kaart

Wijk statistieken

Bekijk meer statistieken

Locatie

Kenmerken

Prijs € 389500 ,- Kosten koper
Soort object Woonhuis
Woonoppervlakte 101 m2
Perceeloppervlakte 184 m2

Bouwvorm

Soort object Woonhuis
Soort woning Eengezinswoning
Type woning Twee onder een kapwoning
Kwaliteit woning Normaal
Bouwvorm Bestaande bouw

Indeling

Woonoppervlakte 101 m2
Perceeloppervlakte 184 m2
Inhoud 368 m3
Aantal kamers 4
Aantal slaapkamers 3

Energie

Verwarming Cv ketel
C.V.-Ketel Hr cv
Warmwater Cv ketel
Isolatie Dakisolatie, muurisolatie, vloerisolatie, dubbel glas, hr glas
Combiketel Ja
Brandstof Gas
Eigendom Eigendom

Buitenruimte

Tuin Achtertuin, voortuin, zijtuin
Hoofdtuin Achtertuin
Oppervlakte hoofdtuin 52 m2 ( bij )
Ligging hoofdtuin Zuidoost
Achterom Ja
Kwaliteit tuin Normaal

Parkeergelegenheid

Garage Geen garage
Parkeerfaciliteiten Openbaar parkeren

Overig

Permanente bewoning Ja
Onderhoud binnen Goed
Onderhoud buiten Goed
Huidig gebruik Woonruimte
Huidige bestemming Woonruimte

Omschrijving

Goed onderhouden en fraai gemoderniseerd helft van dubbel woonhuis met 3 slaapkamers en een zonnige tuin.

Dit in 1954 als semi-bungalow gebouwde helft van dubbel woonhuis is in de afgelopen jaren grondig gemoderniseerd, uitgebreid met grote dakkapellen en is voorzien van alle gemakken, waaronder een praktische bijkeuken. De woning beschikt over maar liefst 3 slaapkamers op de eerste etage en een heerlijke, op het zuiden gerichte tuin.

Noemenswaardig zijn het relatief vrije zicht aan de voorzijde en de royale woonkamer. Deze grote woonkamer kan eenvoudig worden opgesplitst in een woonkamer en een slaapkamer op de begane grond. In combinatie met de badkamer op de begane grond ontstaat hierdoor een praktische en levensloopbestendige woning.

De woning is goed geïsoleerd, met dakisolatie, muurisolatie, vloerisolatie en dubbel glas (deels HR++), en beschikt over energielabel C. Bovendien is de woning voorzien van een HR-combiketel uit 2021.

Gelegen in een groene, ruim opgezette woonwijk in het bosrijke Doorwerth, biedt deze woning een perfecte balans tussen rust en bereikbaarheid. Het ligt op loopafstand van tal van voorzieningen, zoals een winkelcentrum, (basis)scholen en sportaccommodaties. De bereikbaarheid is uitstekend; uitvalswegen zoals de A12 en A50 zijn goed bereikbaar, en Doorwerth biedt prima openbaar vervoermogelijkheden. Het centrum van Oosterbeek ligt op ongeveer 8 minuten afstand, en zowel Arnhem als Wageningen zijn in circa 14 minuten te bereiken.

Naast de bosrijke omgeving zijn ook de nabijgelegen uiterwaarden van de Rijn een groot pluspunt. Hier kunt u eindeloos wandelen en fietsen.

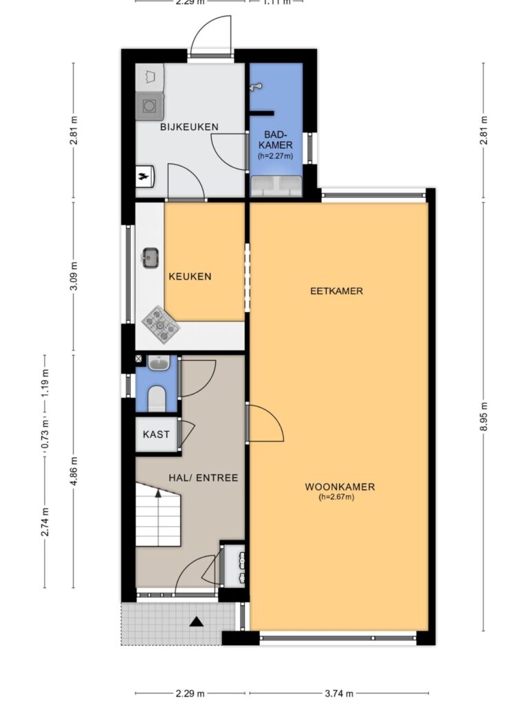
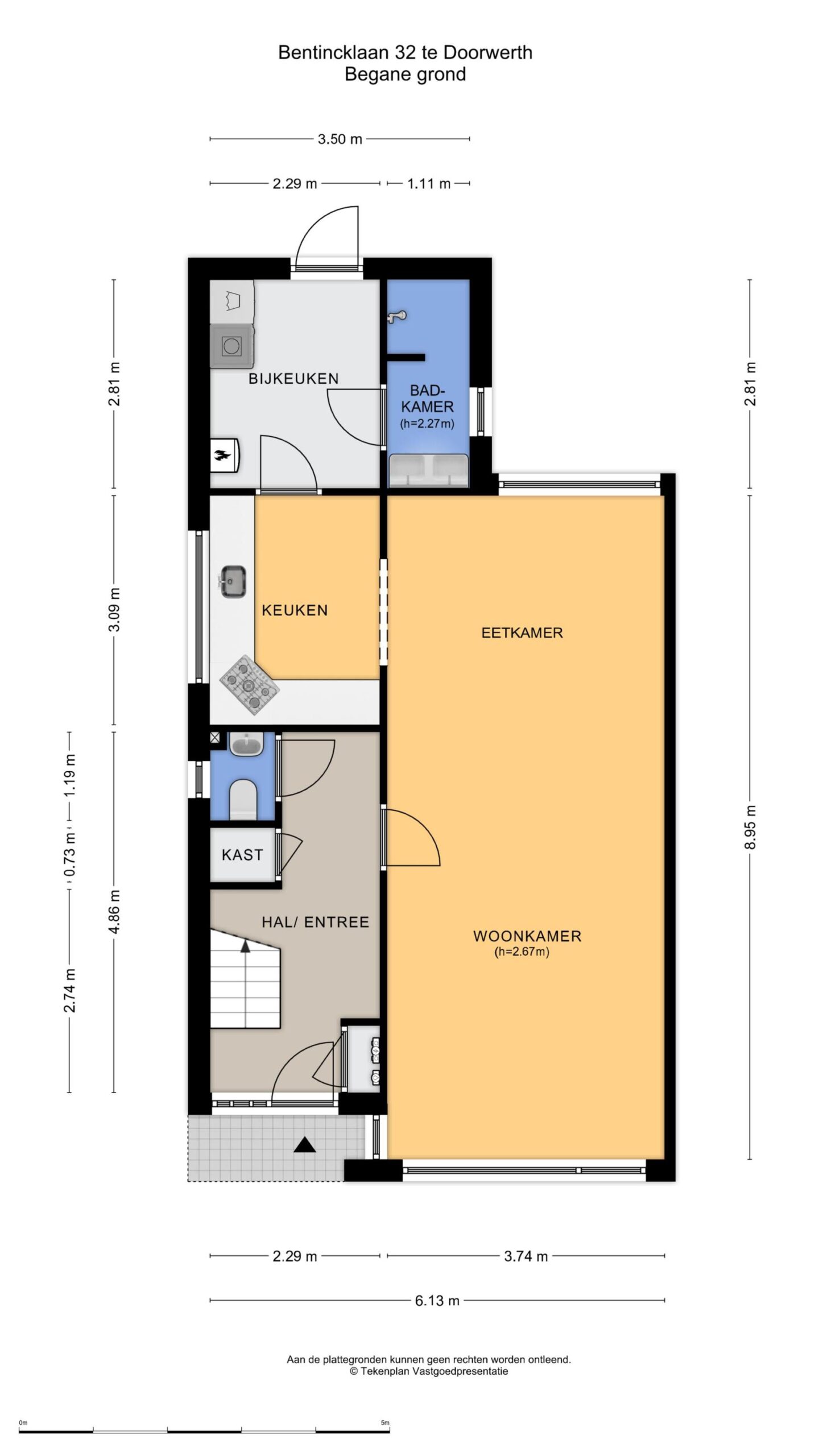
Begane grond:

Entree/hal met garderobe en meterkast, trap naar de eerste verdieping, inbouwkast en moderne toiletruimte met wandcloset en fonteintje. Royale, lichte woonkamer met grote raampartijen en een open keuken voorzien van een nette inbouwkeuken met diverse inbouwapparatuur. Praktische bijkeuken met aansluitingen voor wasapparatuur en een deur naar de tuin. Badkamer met douche en wastafelmeubel. De zonnige tuin op het zuiden beschikt over een aparte (fietsen)berging en is ook via de zijtuin bereikbaar is.

Eerste verdieping:

Lichte overloop met bergruimte achter knieschot en een Velux-dakraam. Moderne toiletruimte en 3 ruime slaapkamers, voorzien van grote dakkapellen en diverse bergruimtes.

Bijzonderheden:

• Fraaie ligging in het bosrijke Doorwerth;
• Praktische en centrale ligging, op steenworp afstand van het winkelcentrum;
• Fijn gezinshuis, maar ook eenvoudig levensloopbestendig te maken;
• Aanvaarding in overleg.

Plattegronden (3)

Wijk statistieken

In de buurt

Selecteer de filters om te zien wat er in de buurt te vinden is.

    Documenten

    Selecteer de gewenste documenten om ze te downloaden

    Reageer direct Onze makelaars begeleiden je graag door het huis heen!