Wonen in een modern, uitstekend onderhouden en verrassend ruim huis met drie lagen? Deze complete gezinswoning in Doorwerth biedt het allemaal. De woning is hoogwaardig afgewerkt, duurzaam uitgevoerd en dankzij de speelse indeling en grote raampartijen heerlijk licht. Een instapklare woning die direct een gevoel van comfort en kwaliteit uitstraalt....
Doorwerth Dalweg 68
€595.000,- Kosten koper
Kenmerken
| Soort object | Woonhuis |
|---|---|
| Bouwjaar | 1978 |
| Woonoppervlakte | 165 m2 |
| Perceeloppervlakte | 199 m2 |
In de buurt
Locatie
Kenmerken
| Prijs | € 595000 ,- Kosten koper |
|---|---|
| Soort object | Woonhuis |
| Bouwjaar | 1978 |
| Woonoppervlakte | 165 m2 |
| Perceeloppervlakte | 199 m2 |
Bouwvorm
| Soort object | Woonhuis |
|---|---|
| Soort woning | Eengezinswoning |
| Type woning | Tussenwoning |
| Kwaliteit woning | Fraai aangelegd |
| Bouwjaar | 1978 |
| Bouwvorm | Bestaande bouw |
Indeling
| Woonoppervlakte | 165 m2 |
|---|---|
| Perceeloppervlakte | 199 m2 |
| Inhoud | 604 m3 |
| Aantal kamers | 4 |
| Aantal slaapkamers | 3 |
Energie
| Verwarming | Cv ketel |
|---|---|
| C.V.-Ketel | Hrc |
| Warmwater | Cv ketel |
| Isolatie | Dakisolatie, muurisolatie, dubbel glas |
| Combiketel | Ja |
| Brandstof | Gas |
| Eigendom | Eigendom |
Buitenruimte
| Tuin | Achtertuin, voortuin |
|---|---|
| Hoofdtuin | Achtertuin |
| Oppervlakte hoofdtuin | 61 m2 ( bij ) |
| Ligging hoofdtuin | West |
| Kwaliteit tuin | Fraai aangelegd |
Parkeergelegenheid
| Garage | Geen garage |
|---|---|
| Parkeerfaciliteiten | Openbaar parkeren, op eigen terrein |
Overig
| Permanente bewoning | Ja |
|---|---|
| Onderhoud binnen | Goed |
| Onderhoud buiten | Goed |
| Huidig gebruik | Woonruimte |
| Huidige bestemming | Woonruimte |
Omschrijving
Wonen in een modern, uitstekend onderhouden en verrassend ruim huis met drie lagen? Deze complete gezinswoning in Doorwerth biedt het allemaal. De woning is hoogwaardig afgewerkt, duurzaam uitgevoerd en dankzij de speelse indeling en grote raampartijen heerlijk licht. Een instapklare woning die direct een gevoel van comfort en kwaliteit uitstraalt.
Deze bijzondere woning, gebouwd in 1978 als onderdeel van een kleinschalig clusterproject, ligt aan een sfeervol pleintje met geschakelde woningen in diverse stijlen en formaten. De architectuur sluit mooi aan op de groene omgeving en zorgt voor een rustige, prettige woonbeleving.
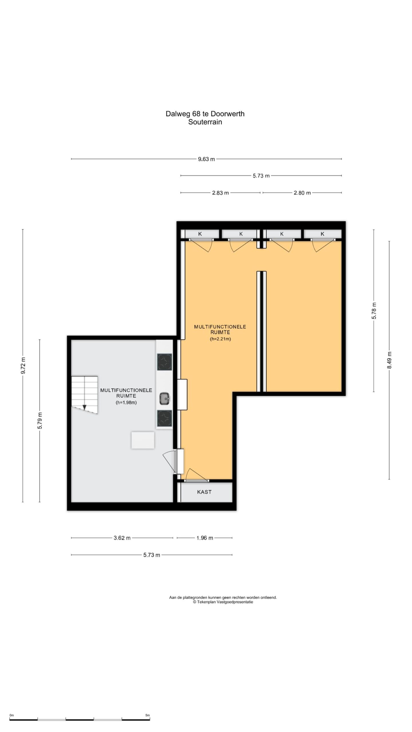
Met een woonoppervlakte van circa 165 m², aangevuld met een extra souterrain van circa 21 m², biedt deze woning aanzienlijk meer ruimte dan de gemiddelde woning in de wijk. De woning is zowel aan de voor- als achterzijde voorzien van kunststof gevels (Keralit) en kozijnen met HR++ beglazing, wat bijdraagt aan een duurzame en onderhoudsarme woonervaring.
Via de voortuin bereikt u de entree met hal, garderobenis, meterkast en een modern toilet met wandcloset en fonteintje. De ruime, tuingerichte woonkamer is bijzonder licht en sfeervol, mede dankzij de grote schuifpui die zorgt voor een prachtige verbinding met de fraai aangelegde achtertuin. De woonkamer beschikt tevens over een open haard, wat bijdraagt aan extra comfort en gezelligheid. De tuin is onderhoudsvriendelijk aangelegd en gunstig gelegen op het westen en zuiden, zodat u hier optimaal van de zon kunt genieten.
De open keuken is voorzien van een eigentijdse inbouwkeuken en biedt via een praktische inloopkast toegang tot het souterrain. Vanuit hier leidt een trap naar een verrassend veelzijdige benedenruimte. Dit souterrain bestaat uit meerdere netjes afgewerkte ruimtes en is voorzien van inbouwverlichting, een plavuizen vloer, inbouwkasten en aansluitingen voor elektra en water. Ideaal als bijvoorbeeld bergruimte, hobbyruimte of extra (hybride) werkplek.
Op de eerste verdieping bevinden zich drie ruime slaapkamers en een royale, moderne badkamer. Deze is eigentijds uitgevoerd en voorzien van een ligbad, douche, dubbel wastafelmeubel en wandcloset. De hoofdslaapkamer beschikt daarnaast over een balkon.
De woning is niet alleen ruim en comfortabel, maar ook energiezuinig en toekomstbestendig. Met energielabel A, goede isolatie en 9 zonnepanelen is dit een duurzame keuze voor de lange termijn.
De ligging biedt een mooie balans: rustig en groen wonen, met voorzieningen zoals winkels, scholen en sportfaciliteiten in de directe nabijheid. Daarnaast zijn steden als Arnhem en Wageningen goed bereikbaar en liggen de uitvalswegen A50 en A12 op korte afstand.
Bijzonderheden:
– woonoppervlakte ca. 165 m² + souterrain ca. 21 m²
– kunststof gevels (Keralit) en kozijnen met HR++ beglazing
– energielabel A, goed geïsoleerd en duurzaam
– 9 zonnepanelen
– HR CV-ketel (2007)
– souterrain met meerdere multifunctionele ruimtes
– woonkamer met open haard en schuifpui naar de tuin
– zonnige tuin op het westen en zuiden
– hoogwaardige en nette afwerking
– aanvaarding in overleg
Wijk statistieken
Aantal inwoners Renkum: 31,391
In de buurt
Selecteer de filters om te zien wat er in de buurt te vinden is.
Documenten
Selecteer de gewenste documenten om ze te downloaden