Arnhem Graaf Lodewijkstraat 150

€339.000,- Kosten koper

Korte omschrijving

Op loopafstand van park Sonsbeek en het gezellige centrum van Arnhem ligt deze ruime bovenwoning. De woning is de afgelopen jaren verhuurd geweest en nu ideaal geschikt om geheel naar eigen wens te renoveren en moderniseren. Bouwjaar ca. 1902, woonoppervlak: 122m2. Indeling: Entree, trapopgang, overloop met doorloop naar de aan...

Lees meer over deze woning

Kenmerken

Soort object Appartement
Woonoppervlakte 122 m2
Bekijk meer kenmerken

In de buurt

Bekijk meer op de kaart

Wijk statistieken

Bekijk meer statistieken

Locatie

Kenmerken

Prijs € 339000 ,- Kosten koper
Soort object Appartement
Woonoppervlakte 122 m2

Bouwvorm

Soort object Appartement
Bouwvorm Bestaande bouw

Indeling

Woonoppervlakte 122 m2
Inhoud 444 m3
Aantal kamers 5
Aantal slaapkamers 3

Energie

Verwarming Cv ketel
Warmwater Cv ketel
Combiketel Ja
Brandstof Gas
Eigendom Eigendom

Buitenruimte

Tuin Geen tuin

Parkeergelegenheid

Garage Geen garage
Parkeerfaciliteiten Openbaar parkeren

Overig

Permanente bewoning Ja
Onderhoud binnen Matig
Onderhoud buiten Matig
Huidig gebruik Woonruimte
Huidige bestemming Woonruimte

Omschrijving

Op loopafstand van park Sonsbeek en het gezellige centrum van Arnhem ligt deze ruime bovenwoning. De woning is de afgelopen jaren verhuurd geweest en nu ideaal geschikt om geheel naar eigen wens te renoveren en moderniseren.
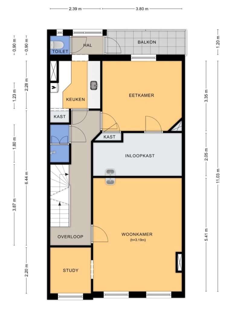
Bouwjaar ca. 1902, woonoppervlak: 122m2.

Indeling:

Entree, trapopgang, overloop met doorloop naar de aan de voorzijde gelegen zonnige woonkamer met study. Aan de achterzijde van deze verdieping vind je de eetkamer met royale inloopkast/study, de keuken, het toilet en toegang tot het balkon aan de achterzijde. Ook vind je op deze overloop momenteel de douchegelegenheid.

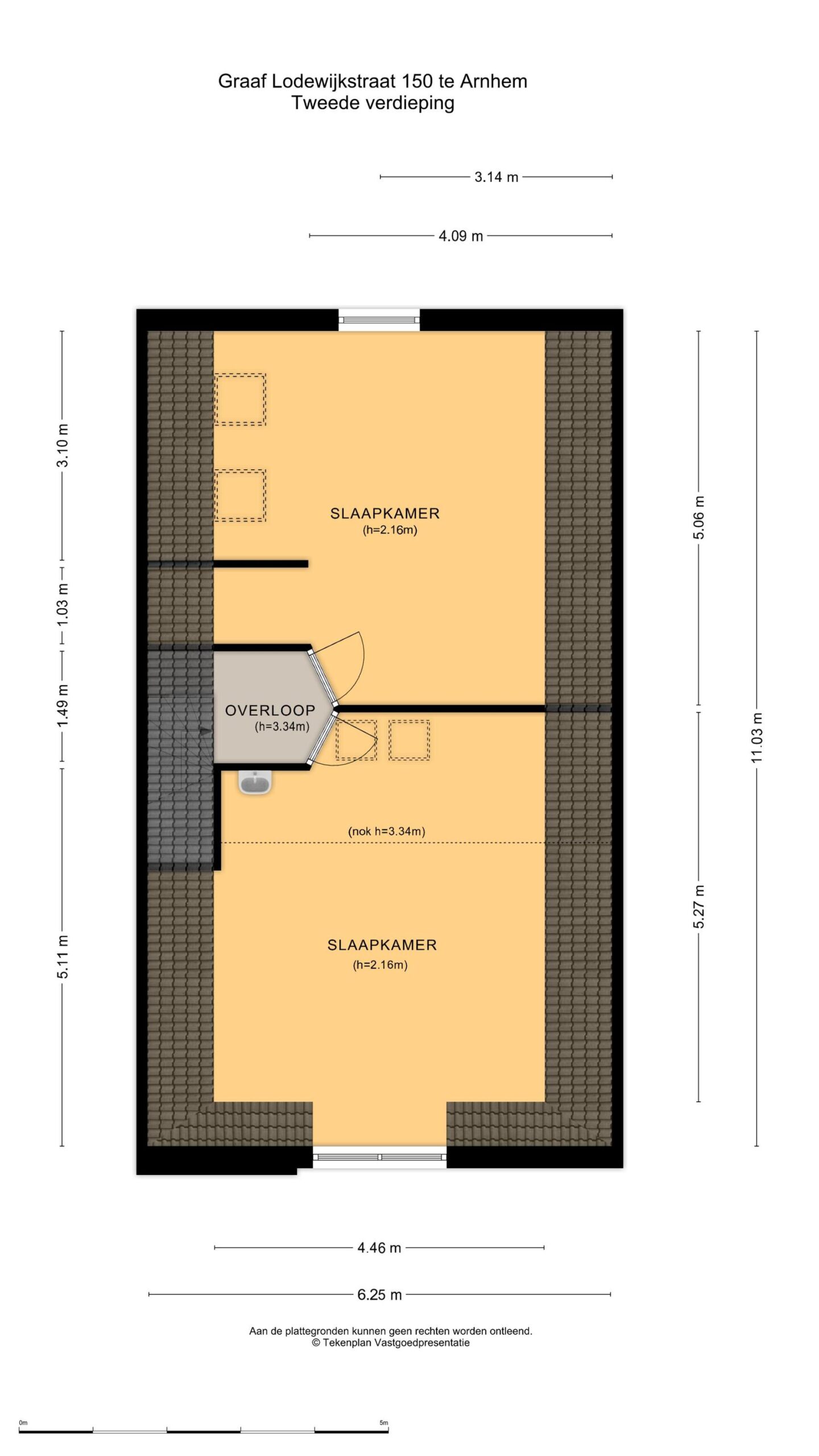
1e verdieping: overloop en 2 zeer ruime slaapkamers, die eventueel geheel naar eigen smaak en wens opnieuw kunnen worden opgedeeld.

Al met al een appartement met volop heerlijke mogelijkheden!

Bijzonderheden:
– aanvullende artikelen van toepassing
– VvE dient te worden opgericht

Aanvaarding: in overleg.

Plattegronden (3)

Wijk statistieken

Graaf Ottoplein e.o. ligt in de gemeente .

In de buurt

Selecteer de filters om te zien wat er in de buurt te vinden is.

    Documenten

    Selecteer de gewenste documenten om ze te downloaden

    Reageer direct Onze makelaars begeleiden je graag door het huis heen!