Oosterbeek Steijnweg 7 F

€325.000,- Kosten koper

Korte omschrijving

Op loopafstand van de gezellige dorpskern van Oosterbeek en nabij bossen en openbaar vervoer gelegen, bijzonder licht en keurig onderhouden, 3 kamer HOEK-appartement met balkon en berging in de onderbouw. Het appartement is op de 2e woonlaag gelegen en heeft hierdoor plezierig vrij zicht op de Steijnweg. Gesitueerd in een...

Lees meer over deze woning

Kenmerken

Soort object Appartement
Bouwjaar 1969
Woonoppervlakte 74 m2
Bekijk meer kenmerken

In de buurt

Bekijk meer op de kaart

Wijk statistieken

Bekijk meer statistieken

Locatie

Kenmerken

Prijs € 325000 ,- Kosten koper
Soort object Appartement
Bouwjaar 1969
Woonoppervlakte 74 m2

Bouwvorm

Soort object Appartement
Bouwjaar 1969
Bouwvorm Bestaande bouw

Indeling

Woonoppervlakte 74 m2
Inhoud 239 m3
Aantal kamers 3
Aantal slaapkamers 2

Energie

Verwarming Blokverwarming
Warmwater Elektrische boiler eigendom
Isolatie Dakisolatie, dubbel glas

Buitenruimte

Tuin Geen tuin

Parkeergelegenheid

Garage Geen garage
Parkeerfaciliteiten Openbaar parkeren

Overig

Permanente bewoning Ja
Onderhoud binnen Goed tot uitstekend
Onderhoud buiten Goed
Huidig gebruik Woonruimte
Huidige bestemming Woonruimte

Omschrijving

Op loopafstand van de gezellige dorpskern van Oosterbeek en nabij bossen en openbaar vervoer gelegen, bijzonder licht en keurig onderhouden, 3 kamer HOEK-appartement met balkon en berging in de onderbouw.

Het appartement is op de 2e woonlaag gelegen en heeft hierdoor plezierig vrij zicht op de Steijnweg.

Gesitueerd in een groene ruim opgezette woonwijk, dichtbij tal van voorzieningen zoals het centrum van Oosterbeek, (basis)scholen en sportaccommodaties. De bereikbaarheid is uitstekend te noemen, uitvalswegen waaronder A12/A50 zijn zeer vlot aan te rijden, ook heeft Oosterbeek een prima aanbod aan openbaar vervoer waaronder een treinstation.

Noemenswaardig ook is de bosrijke omgeving en niet te vergeten de uiterwaarden van de Rijn, u kunt in de omgeving eindeloos wandelen en fietsen.

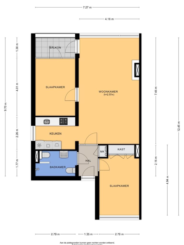
Indeling:

Entree, ruime lichte woonkamer met toegang tot zonnig balkon, nette afgesloten keuken met apparatuur en badkamer met douche en toilet. Verder beschikt het appartement over 2 ruime slaapkamers waarvan 1 met toegang tot het balkon.

Bijzonderheden:

– servicekosten € 220,58 per maand (excl. voorschot stookkosten)
– Energielabel C
– het appartementencomplex beschikt over een lift

Aanvaarding: in overleg.

Plattegronden (2)

Wijk statistieken

Aantal inwoners Renkum: 31,391

In de buurt

Selecteer de filters om te zien wat er in de buurt te vinden is.

    Documenten

    Selecteer de gewenste documenten om ze te downloaden

    Reageer direct Onze makelaars begeleiden je graag door het huis heen!