Oosterbeek Utrechtseweg 110 C

€375.000,- Kosten koper

Korte omschrijving

Sfeervol 3-kamerappartement met twee balkons, in hartje Oosterbeek! Op een buitengewoon centrale en mooie locatie bieden wij dit aantrekkelijke 3-kamerappartement aan, gelegen op de eerste woonlaag van een kleinschalig appartementencomplex (1979) met lift. Vanuit het appartement geniet u zowel van een sfeervol en gezellig zicht op de levendige dorpskern van...

Lees meer over deze woning

Kenmerken

Soort object Appartement
Bouwjaar 1979
Woonoppervlakte 84 m2
Bekijk meer kenmerken

In de buurt

Bekijk meer op de kaart

Wijk statistieken

Bekijk meer statistieken

Locatie

Kenmerken

Prijs € 375000 ,- Kosten koper
Soort object Appartement
Bouwjaar 1979
Woonoppervlakte 84 m2

Bouwvorm

Soort object Appartement
Bouwjaar 1979
Bouwvorm Bestaande bouw

Indeling

Woonoppervlakte 84 m2
Inhoud 280 m3
Aantal kamers 3
Aantal slaapkamers 2

Energie

Verwarming Cv ketel, open haard
Warmwater Cv ketel
Isolatie Dubbel glas
Combiketel Ja
Brandstof Gas
Eigendom Eigendom

Buitenruimte

Tuin Geen tuin

Parkeergelegenheid

Garage Geen garage
Parkeerfaciliteiten Openbaar parkeren

Overig

Permanente bewoning Ja
Onderhoud binnen Redelijk tot goed
Onderhoud buiten Goed
Huidig gebruik Woonruimte
Huidige bestemming Woonruimte

Omschrijving

Sfeervol 3-kamerappartement met twee balkons, in hartje Oosterbeek!

Op een buitengewoon centrale en mooie locatie bieden wij dit aantrekkelijke 3-kamerappartement aan, gelegen op de eerste woonlaag van een kleinschalig appartementencomplex (1979) met lift. Vanuit het appartement geniet u zowel van een sfeervol en gezellig zicht op de levendige dorpskern van Oosterbeek als van de rust en het vrije zicht aan de achterzijde.

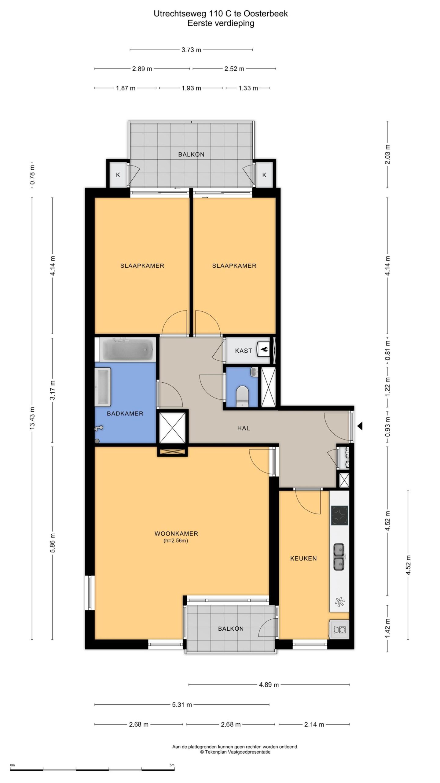
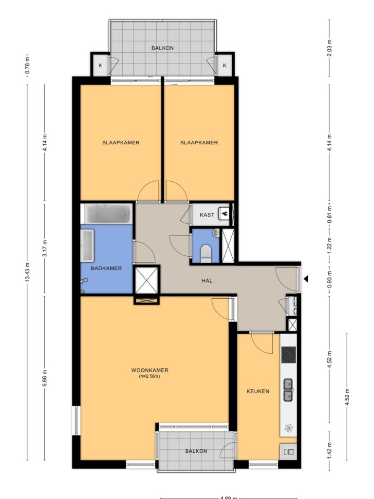
Indeling:

Begane grond: centrale entree

Appartement: via de ruime entree loopt u de hal binnen. Aan de hal liggen de keuken met toegang tot het eerste balkon, de lichte en ruime woonkamer met open haard, en het separate toilet.
Verder vindt u aan de achterzijde van het appartement twee royale slaapkamers, beide met toegang tot het zonnige, tweede balkon. De nette badkamer is voorzien van een ligbad, douche en wastafel.

In de onderbouw bevindt zich een praktische berging.

Bijzonderheden:
– ideale ligging in het centrum, nabij winkels en openbaar vervoer
– kleinschalig complex met lift
– actieve VvE, bijdrage: € 214,- per maand

Aanvaarding: in overleg

Plattegronden (2)

Wijk statistieken

Aantal inwoners Renkum: 31,391

In de buurt

Selecteer de filters om te zien wat er in de buurt te vinden is.

    Documenten

    Selecteer de gewenste documenten om ze te downloaden

    Reageer direct Onze makelaars begeleiden je graag door het huis heen!