Wolfheze van Mesdagweg 25

€450.000,- Kosten koper

Korte omschrijving

Prachtig uitgebouwd en compleet gezinshuis in het bosrijke Wolfheze! Wonen in het groen, met alle gemakken op korte afstand? Dit eigentijdse en uitgebouwde gezinshuis met drie verdiepingen en een diepe, vrij gelegen achtertuin biedt precies dat! Gelegen in het bosrijke Wolfheze, midden in de prachtige natuur, ervaart u hier dagelijks...

Lees meer over deze woning

Kenmerken

Soort object Woonhuis
Bouwjaar 1959
Woonoppervlakte 113 m2
Perceeloppervlakte 220 m2
Bekijk meer kenmerken

In de buurt

Bekijk meer op de kaart

Wijk statistieken

Bekijk meer statistieken

Locatie

Kenmerken

Prijs € 450000 ,- Kosten koper
Soort object Woonhuis
Bouwjaar 1959
Woonoppervlakte 113 m2
Perceeloppervlakte 220 m2

Bouwvorm

Soort object Woonhuis
Soort woning Eengezinswoning
Type woning Tussenwoning
Kwaliteit woning Normaal
Bouwjaar 1959
Bouwvorm Bestaande bouw

Indeling

Woonoppervlakte 113 m2
Perceeloppervlakte 220 m2
Inhoud 416 m3
Aantal kamers 4
Aantal slaapkamers 4

Energie

Verwarming Cv ketel
C.V.-Ketel Hrcv
Warmwater Cv ketel
Isolatie Dubbel glas, hr glas
Combiketel Ja
Brandstof Gas
Eigendom Eigendom

Buitenruimte

Tuin Achtertuin, voortuin
Hoofdtuin Achtertuin
Oppervlakte hoofdtuin 90 m2 ( bij )
Ligging hoofdtuin Zuidoost
Achterom Ja
Kwaliteit tuin Normaal

Parkeergelegenheid

Garage Geen garage
Parkeerfaciliteiten Openbaar parkeren

Overig

Permanente bewoning Ja
Onderhoud binnen Goed
Onderhoud buiten Goed
Huidig gebruik Woonruimte
Huidige bestemming Woonruimte

Omschrijving

Prachtig uitgebouwd en compleet gezinshuis in het bosrijke Wolfheze!

Wonen in het groen, met alle gemakken op korte afstand? Dit eigentijdse en uitgebouwde gezinshuis met drie verdiepingen en een diepe, vrij gelegen achtertuin biedt precies dat! Gelegen in het bosrijke Wolfheze, midden in de prachtige natuur, ervaart u hier dagelijks een vakantiegevoel.

Wolfheze is een van de zes dorpen in de gemeente Renkum en ligt op korte afstand van Doorwerth (7 minuten rijden) en Oosterbeek (8 minuten rijden), waar u een ruim aanbod aan voorzieningen vindt, zoals supermarkten, apotheken, (basis)scholen, sportfaciliteiten en huisartsenposten. Wolfheze zelf beschikt over een basisschool, kinderopvang, een treinstation met een kleine winkel, diverse restaurants en sportverenigingen, waaronder een voetbalclub en een tennisvereniging. Daarnaast zijn de uitvalswegen naar de A12 en A50 snel bereikbaar. De prachtige omgeving biedt eindeloze mogelijkheden om te wandelen, fietsen en zelfs schaatsen in de uiterwaarden van de Rijn in de winter.

Bouwjaar: circa 1959, woonoppervlakte: ca. 113 m², perceeloppervlakte: ca. 220 m², inhoud: ca. 416 m³.

Indeling

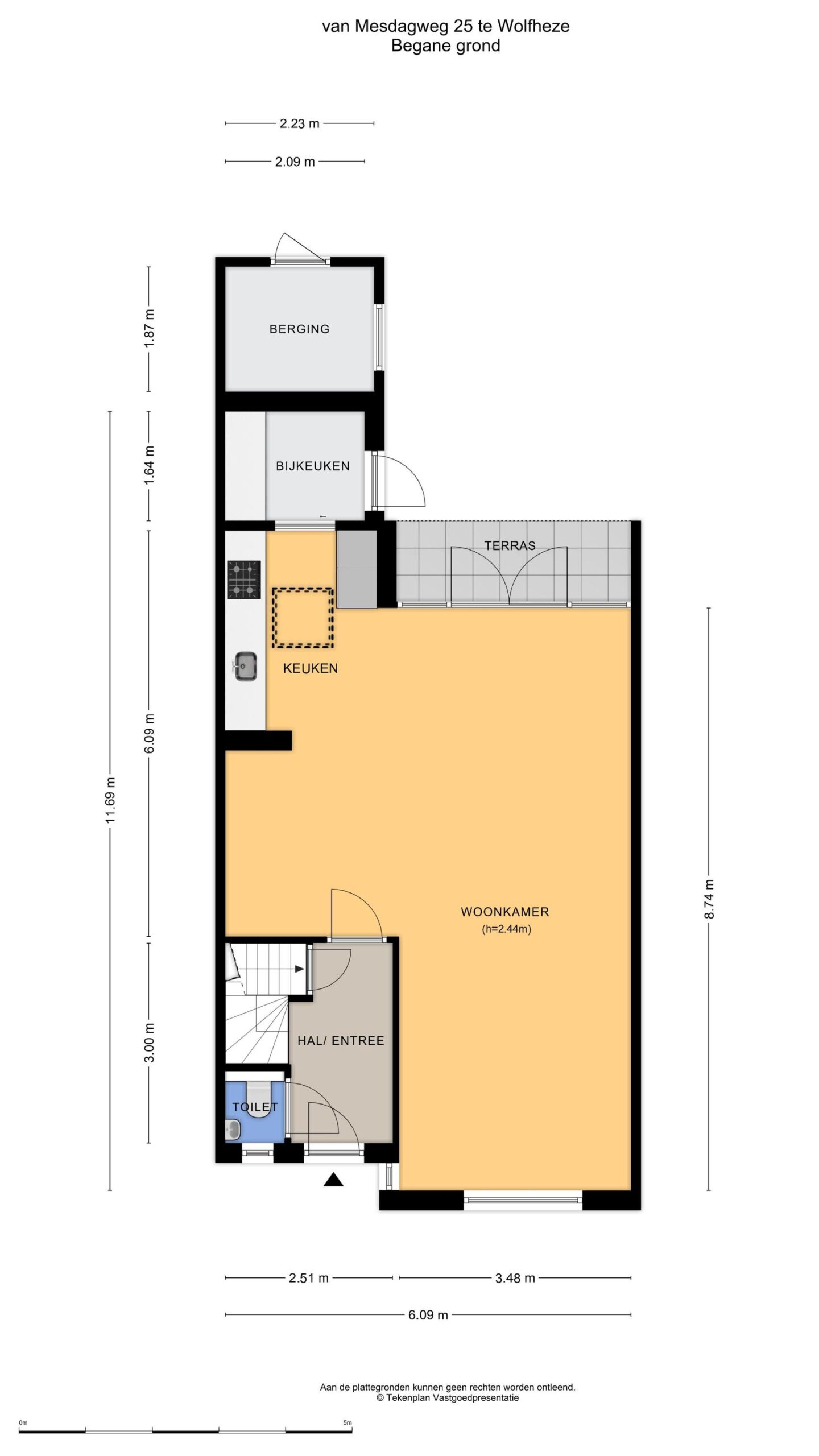
Begane grond:
Entree/hal met meterkast, modern toilet met wandcloset en fonteintje. Vanuit de hal toegang tot een praktische proviandkelder. De royale en uitgebouwde woonkamer heeft een houten vloer, grote raampartijen en openslaande deuren naar de tuin. De open keuken is modern en voorzien van inbouwapparatuur. Aangrenzend bevindt zich de bijkeuken met tuindeur. De circa 15 meter diepe achtertuin beschikt over een berging, een achterom en een prachtig vrij uitzicht op het groen.

Eerste verdieping:
Overloop met vaste trap naar de tweede verdieping. Een praktische wasruimte met aansluitingen voor wasapparatuur, een wastafel en toegang tot het balkon. De grote en moderne badkamer is voorzien van een inloopdouche, wastafelmeubel, handdoekenradiator, vloerverwarming en een tweede toilet. Daarnaast zijn er twee ruime slaapkamers op deze verdieping.

Tweede verdieping:
Overloop met dakkapel en bergruimtes. Op deze bevindt zich tevens de ruime derde slaapkamer met dakraam, bergruimte en een grote dakkapel, wat zorgt voor veel lichtinval en extra leefruimte.

Bijzonderheden:
– HR CV-ketel (bouwjaar 2016)
– Fors uitgebouwd op de begane grond met een grote tuingerichte living
– Diepe en fraai aangelegde achtertuin met berging, achterom en vrij uitzicht op het groen
– Schitterende woonomgeving, omringd door natuur en nabij alle voorzieningen
– Uitstekende bereikbaarheid via uitvalswegen en openbaar vervoer
– Aanvaarding in overleg

Plattegronden (4)

Wijk statistieken

In de buurt

Selecteer de filters om te zien wat er in de buurt te vinden is.

    Documenten

    Selecteer de gewenste documenten om ze te downloaden

    Reageer direct Onze makelaars begeleiden je graag door het huis heen!